24小时咨询热线 18758109669

您的位置:主页 > 产品展示

板框厢式压滤机

板框厢式压滤机

禹州市九州压滤设备有限公司位于禹州市产业集聚区东产业园和谐路22号,是一家集研发,设计,生产,销售,服务于一体的压滤机生产企业。 公司拥有一批从事压滤机生产设计多

24小时咨询热线 18758109669
拨打电话咨询选型

产品中心

咨询服务热线: 18758109669
拨打电话咨询选型
产品详情 Product details
   禹州市九州压滤设备有限公司位于禹州市产业集聚区东产业园和谐路22号,是一家集研发,设计,生产,销售,服务于一体的压滤机生产企业。
   公司拥有一批从事压滤机生产设计多年的高中低工程师团队,参与公司的产品设计,产品畅销全国各地,远销新加坡、马来西亚、菲利宾、印度等多个我国。产品系列有:厢式压滤机,板框压滤机,隔膜压榨式压滤机、铸铁压滤机、不锈钢压滤机、全自动压滤机等。具体型号为:320、450、630 、800、1000 、1250、1500 、2000型。过滤面积为1-500平方,产品压紧方式有:手动,千斤顶,液压,机械,程控全自动等。滤板材质:增强聚丙烯,TPE弹性,玻璃纤维聚丙烯,铸铁,不锈钢等。产品广泛应用于化工、冶金、石油、陶瓷、食品、制药、建材、洗煤、矿山及污水污泥处理、固液体分离等行业,受到海内外用户的一致好评。
   我公司注重产品质量,有的售后服务团队,长期免费跟踪服务。我们的企业精神:诚信为本,为魂。期待与各界朋友携手共创公司美好的未来。热线服务:15690792000
压滤机
   板框厢式压滤机的滤室有一块平板滤板和一块中空的滤框组成,滤布固定在板框上的,这是早期主要压滤机形式,
   而板框厢式压滤机的滤室是由相邻两块凹陷的滤板构成,主要优点是更换滤布方便,缺点是效率低、过滤效果不好、滤板容易坏;
压滤机
   工作原理
 
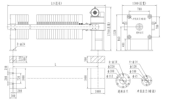
   板框厢式压滤机工作原理是由滤板排列组成滤室(滤板两侧凹进,每两块滤板组合成一厢形滤室)。
   滤板的表面有麻点和凸台,用以支撑滤布。滤板的中心和边角上有通孔,组装后构成完整的通道,能通入悬浮液、洗涤水和引出滤液。滤板两侧各有把手支托在横梁上,由压紧装置压紧滤板。滤板之间的滤布起密封作用。
   在输料泵的压力作用下, 将需要过滤的物料液体送进各滤室,通过过滤介质(根据不同行业选择合适的滤布),将固体和液体分离。在滤布上形成滤渣,直至充满滤室形成滤饼。滤液穿过滤布并沿滤板沟槽流至下方出液孔通道,集中排出。过滤完毕,可通入清洗涤水洗涤滤渣。洗涤后,有时还通入压缩空气,除去剩余的洗涤液。过滤结束后打开压滤机卸除滤饼(滤饼储存在于相邻两个滤板间),清洗滤布,重新压紧板滤开始下一工作循环。
   滤布固定在板框上的,这是早期主要压滤机形式,厢式压滤机的主要优点是更换滤布方便,缺点是效率低、过滤效果不好、滤板容易坏;厢式压滤机的滤室是由相邻两块凹陷的滤板构成的,滤布固定在每块滤板上,厢式压滤机的主要优点是效率较高、效果较好、滤板也相对耐用(相同条件下),不过自动化程度都较高,清洗滤布也有自动装置,一般更换滤布的次数也不会频繁。
压滤机
   操作方法
   1.合上电源开关,电源指示灯亮。 
   2.按“启动”按钮,启动油泵。 
   3.将所有滤板移至止推板端,并使其位于两横梁中央。 
   4.按“压紧”按钮,活塞推动压紧板,将所有滤板压紧,达到液压工作压力值后,旋转锁紧螺母锁紧保压,按“关闭”按钮,油泵停止工作。 
   5.暗流:打开滤液阀放液,明流:开启水嘴放液,开启进料阀,进料过滤。
压滤机
   规程
   1.正确选用滤布。每次工作结束,须清洗一次滤布,使布表面不留有残渣。滤布变硬要软化,若有破坏应及时修复或更换。 
   2.注意保护滤板的密封面,不要碰撞,放置时立着为好,可减少变形。 
   3.油箱通常六个月进行一次清洗,并更换油箱内的液压油,发现液位低于下限时,应即补油。 
   4.待过滤料液的温度应≤100℃,料液中不得混有以堵塞进料口的杂物和坚硬物,以免破坏滤布。 
   5.料液和洗涤水等的阀门须按操作程序开、关,料液和洗涤水不得同时进入。工作结束后应尽可能放尽管道内的剩余料液。  
 
   以上图片均为现场拍摄图,可根据客户需求量身定做、上门规划厂地、指导安装、并带客户实地参观客户生产现场,欢迎了解咨询。服务热线:15690792000